Zur StartseiteSucheingabe  gottenheim.de

HW-Rückhaltebecken Dietenbach Umkirch & Gottenheim

Entwässerungsverband Moos

Website Entwässerungsverband Moos

Der Entwässerungsverband Moos ist ein Zweckverband der Gemeinden Umkirch und Gottenheim zum Schutz vor Hochwasser.

Er betreibt das Hoch­wasserrückhaltebecken (HWRB) Dietenbach, die Flutmulde Gottenheim und zugehörige Bäche/ Gräben.

Er finanziert sich durch Umlagen der Gemeinden, bei Unterhalt und künftigen Investitionen 50:50; bei bestehenden Anlagen: 85% Gottenheim, 15% Umkirch.

Verbandsumlage 2024: Gottenheim 146.185 €, Umkirch 77.956 €.

Presse: Moosverband & RRB Dietenbach

Logo Moosverband

30. Jan. 2021: Schmelzwasser testet das HWRB Dietenbach

Das erweiterte HRB Dietenbach befindet sich erstmals in einem höheren Einstau durch Regen und parallel Abschmelzen der Schneemassen im Schwarzwald bei den hohen Temperaturen.

Der Pegel (Einstauhöhe) lag am 29. Jan 2021 bei 3,20 Meter, der Durchfluss bei 3,7 cbm/sec (max. 4 cbm/sec). Ein Tag später lag der Pegel bei 4,20 m.

Auch der Bachdurchfluss in Gottenheim funktioniert ohne Probleme.

LRA und die Gemeindeverwaltungen beobachten die Situation weiter.

Alle Gemeinden Umkirch, Gottenheim, Bötzingen, Eichstetten sind in Kontakt und Abstimmung.

Rundumblick vom Einstau 30. Jan.2021

Tipp: Zum Vergrößern Miniaturbild anklicken...
Einstau RRB Dietenbach 2021-01 Einstau RRB Dietenbach 2021-02 Einstau RRB Dietenbach 2021-03 Einstau RRB Dietenbach 2021-04 Einstau RRB Dietenbach 2021-05 Einstau RRB Dietenbach 2021-06 Einstau RRB Dietenbach 2021-07 Einstau RRB Dietenbach 2021-08 Einstau RRB Dietenbach 2021-09 Einstau RRB Dietenbach 2021-10
Bilder: Christian Riesterer und Clemens Zeissler

Aug. 2018: Rohbauarbeiten ok

Die großen Bauarbeiten sind weitgehend fertig gestellt, das neue Durchlassbauwerk steht in voller Größe.

Das wenige Wasser (der Sommer 2018 war extrem trocken) fließt bereits kontrolliert durch das neue Pflasterbett unter der Autobahn nach Westen Richtung Umkirch / Gottenheim ...

Tipp: Zum Vergrößern Miniaturbild anklicken...
Sanierung RRB Dietenbach 2018-41 Sanierung RRB Dietenbach 2018-42 Sanierung RRB Dietenbach 2018-43 Sanierung RRB Dietenbach 2018-44 Sanierung RRB Dietenbach 2018-45
Alle Bilder: Harry Andris

Juni 2018: Guter Baufortschritt

In nur zwei Wochen hat sich auf der Baustelle wieder viel getan:

Tipp: Zum Vergrößern Miniaturbild anklicken...
Sanierung RRB Dietenbach 2018-31 Sanierung RRB Dietenbach 2018-32 Sanierung RRB Dietenbach 2018-33 Sanierung RRB Dietenbach 2018-34 Sanierung RRB Dietenbach 2018-35
Alle Bilder: Harry Andris

2018: Stand der Bauarbeiten

Am 5. Juni 2018 besichtigten die Gemeinderäte von Umkirch und Gottenheim mit dem Fahrrad gemeinsam die weit fortgeschrittene Großbaustelle am RRB Dietenbach.

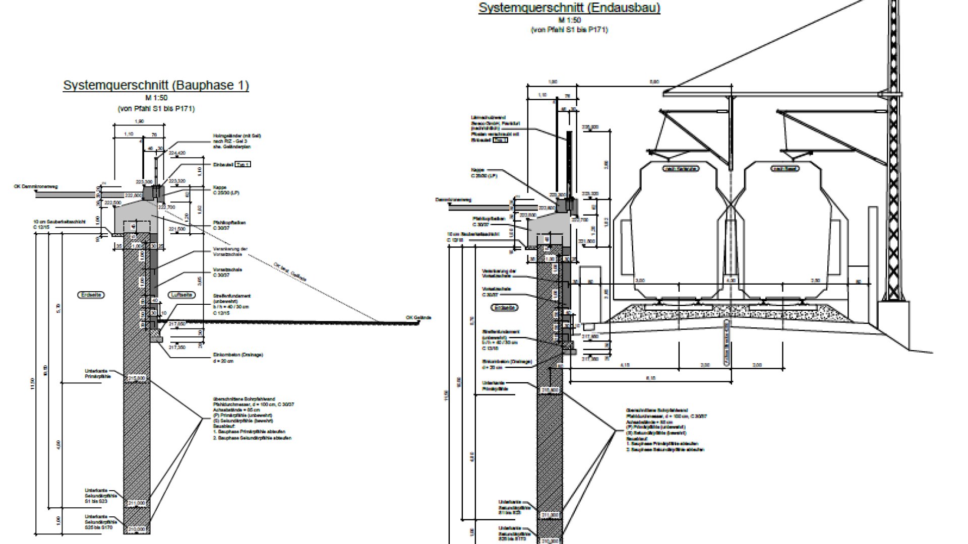
Der Projektplaner Matti Gerspacher erläuterte den beiden Bürgermeistern Herrn Laub/ Umkirch und Herrn Riesterer/ Gottenheim sowie den anwesenden Gemeinderäten die einzelnen Maßnahmen und Ziele der notwendigen Sanierung und Erhöhung der Dämme zur Vergrößerung des Regenrückhaltebeckens (das Rückhaltevolumen wird verdoppelt).

Interessant sind die unmittelbare Nähe zum geplanten 3. und 4. Gleis der Bahn (incl. künftiger Lärmschutzvorrichtungen) und die aufwändigen Maßnahmen zum kontrollierten Überlauf und zur Durchleitung des Wassers unter die BAB A5.

Alles in Allem ein beeindruckend großer Ingenieurbau, der 4,7 Mio. € kostet, wovon nach Abzug der Landeszuschüsse und des Bundesbahnanteils für den Entwässerungsverband Moos immer noch 600.000 € und die künftigen Unterhaltskosten übrigbleiben!
Obwohl doch das Regenwasser nur vom Oberlieger, der Stadt Freiburg, hier gebändigt werden muss...

Sanierung RRB Dietenbach 2018-09

Tipp: Zum Vergrößern Miniaturbild anklicken...
Sanierung RRB Dietenbach 2018-01 Sanierung RRB Dietenbach 2018-02 Sanierung RRB Dietenbach 2018-03 Sanierung RRB Dietenbach 2018-04 Sanierung RRB Dietenbach 2018-05 Sanierung RRB Dietenbach 2018-06 Sanierung RRB Dietenbach 2018-07 Sanierung RRB Dietenbach 2018-08 Sanierung RRB Dietenbach 2018-10 Sanierung RRB Dietenbach 2018-11 Sanierung RRB Dietenbach 2018-12 Sanierung RRB Dietenbach 2018-13 Sanierung RRB Dietenbach 2018-14 Sanierung RRB Dietenbach 2018-15 Sanierung RRB Dietenbach 2018-16 Sanierung RRB Dietenbach 2018-17 Sanierung RRB Dietenbach 2018-18 Sanierung RRB Dietenbach 2018-19 Sanierung RRB Dietenbach 2018-20 Sanierung RRB Dietenbach 2018-21
Alle Bilder: Kurt Hartenbach

2016: Planungsphase

Planungsunterlagen:
Sanierung HWRB Dietenbach
© Fichtner Water&Transportation

Nachfolgend daraus Auszüge und Fotos:

Tipp: Zum Vergrößern Miniaturbild anklicken...
Sanierung RRB Dietenbach 2016-00 Sanierung RRB Dietenbach 2016-13 Sanierung RRB Dietenbach 2016-01 Sanierung RRB Dietenbach 2016-02 Sanierung RRB Dietenbach 2016-03 Sanierung RRB Dietenbach 2016-04 Sanierung RRB Dietenbach 2016-05 Sanierung RRB Dietenbach 2016-06 Sanierung RRB Dietenbach 2016-07 Sanierung RRB Dietenbach 2016-08 Sanierung RRB Dietenbach 2016-09 Sanierung RRB Dietenbach 2016-10 Sanierung RRB Dietenbach 2016-11 Sanierung RRB Dietenbach 2016-12 Ansicht RRB Dietenbach 2016-14 Ansicht RRB Dietenbach 2016-15 Übersicht aller RRBs 2016-16
Bilder: Planungsunterlagen von Fichtner Water&Transportation und Kurt Hartenbach

22. Sept. 2016: Sanierungsplanung für HWRB Dietenbach

Projektplaner Matti Gerspacher berichtete in der Gemeinderatssitzung am 22. September den Gottenheimer Gemeinderäten über die Baumaßnahme und gab auch eine zeitliche Prognose ab.

Nach fast zehn Jahren Verhandlungen und Planungen sei für April 2017 mit dem Beginn der etwa fünf Millionen € teuren Sanierung und Erweiterung des Regenrückhaltebeckens Dietenbach zu rechnen, berichtete der Ingenieur im Gottenheimer Gemeinderat.

BM Christian Riesterer und den Gemeinderäten war die Erleichterung anzumerken,auch wenn die Verhandlungen mit der Stadt Freiburg über den Unterhalt des Beckens weitergehen.

In dem 22 Hektar großen Becken beim Mundenhof fließen der Dietenbach und der Käserbach zusammen, der neue Bach fließt dann als Mühlbach unter der Autobahn A5 durch in Richtung Umkirch und weiter nach Gottenheim.

Derzeit kann das 1996 gebaute Rückhaltebecken bis zu 367.000 Kubikmeter Wasser einstauen, was einem statistisch alle 50 Jahre zu erwartenden Hochwasser entspräche. Nach der nun anstehenden Erweiterung des Hochwasserrückhaltebeckens sollen rund 660.000 Kubikmeter Wasser zurückgehalten werden.

Dies entspricht für die Gemeinden Gottenheim und Umkirch einem Schutz bei einem 100-jährlichen Hochwasserereignis.

Matti Gerspacher berichtete, dass der 1.400 Meter lange und bis zu 5,25 Meter hohe Erddamm des Beckens um bis zu 1,10 Meter erhöht und das Becken auf eine Einstaufläche von 34 Hektar vergrößert werden soll. Bei der Vergrößerung des Beckens muss auch dessen Auslassbauwerk modernisiert werden.

Aktuell arbeite das Büro an der Ausführungsplanung, die Genehmigungen lägen bereits vor und die Ausschreibungen seien in Vorbereitung, berichtete Gerspacher den Gemeinderäten.

Bei einer Sicherheitsüberprüfung im Jahr 2007 seien Defizite entdeckt worden. So gefährde der Baum- und Strauchbewuchs die Standsicherheit des Dammes. Beim Auslassbauwerk sei die Steuerungstechnik überholt, zudem fehle die ökologische Durchgängigkeit.

Künftig soll zudem das dritte und vierte Gleis der Rheintalbahn zwischen dem Rückhaltebecken und der Autobahn verlaufen, so dass ein Teil des Damms durch eine Bohrpfahlwand ersetzt werden muss. Um das Becken richtig zu planen, seien zudem hydraulische Modellversuche an der Universität Karlsruhe vorgenommen worden, so Gerspacher.

Die Kosten für das Bauvorhaben werden zu großen Teilen vom Land Baden-Württemberg übernommen. Etwa 600.000 € sowie die spätere Unterhaltung des Beckens muss aber der Moosverband leisten.

Inwieweit sich die Stadt Freiburg als Oberlieger künftig an der Unterhaltung des Beckens beteilige, sei noch Gegenstand von Verhandlungen, berichtete Bürgermeister Christian Riesterer. Die Stadt Freiburg habe betont, dass der derzeit geplante neue Stadtteil Dietenbach kein zusätzliches Wasser in Richtung Umkirch / Gottenheim und damit ins Becken bringen werde.

Da die Bäume im Bereich des Damms im kommenden Winter entfernt werden müssen, stellt sich die Frage des ökologischen Ausgleichs. Hierfür soll unter anderem eine Fläche auf Gottenheimer Gemarkung aufgeforstet werden. Besonders wichtig sei, betonte Bürgermeister Riesterer, dass das Rückhaltebecken auch während der Bauphase funktionstüchtig bleibe.

Die Ausschreibungen für das Millionenprojekt sollen nun ab November erfolgen, die Vergabe der Bauarbeiten ist für Januar 2017 geplant. Rodungsarbeiten am Becken sollen bereits Ende dieses Jahreserfolgen.

Der Baubeginn ist für April kommenden Jahres geplant. Von den 4,7 Millionen € Gesamtbaukosten fördert das Land Baden-Württemberg Planung und Baukosten mit bis zu 90 bzw. 70 Prozent. Die Deutsche Bahn übernimmt die Bau- und Baunebenkosten für die Bohrpfahlwand und das Provisorium komplett. An der restlichen Sanierung beteiligt sich die Bahn mit 30,3 Prozent. Als Gesamtkosten bleiben dem Entwässerungsverband Moos 600.000 € und die künftigen Unterhaltskosten.

Text: Marianne Ambs

Hinweis: Die Verbandsversammlung in Umkirch beschloss am 6. Oktober 2016 das Großprojekt ohne Gegenstimmen.


Zuletzt geändert am 15.05.2026 von Kurt Hartenbach.